Opis

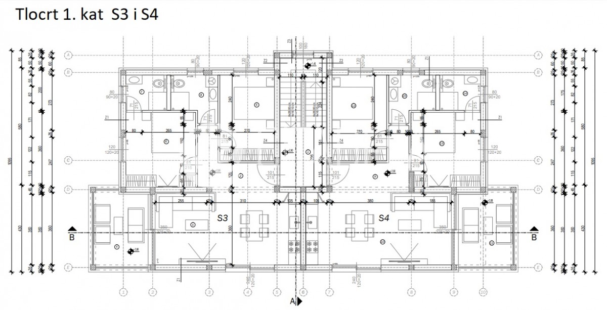
Prodaje se stan oznake S4 na prvom katu zgrade u izgradnji. Nalazi se u Privlaci, predio Škrapavac. Površina je 70,72 m2. Pozicionirana je 150 metara od pješćane plaže.
Sastoji se od hodnika, dvije spavaće sobe, dvije kupaonice, kuhinje i blagovaonice povezane s dnevnim boravkom iz kojega se izlazi na natkrivenu terasu. Pripada mu dva parkirna mjesta u dvorištu.
Podno grijanje je u kupaonici. Svaka soba i dnevni dio su klimatizirani.
Za više informacija molimo kontaktirati agenciju.

Detalji

  • Tip nekretnine: Apartmani
  • Vrsta usluge: Prodaja
  • Lokacija: Privlaka
  • Površina: 70.00 m2
  • Cijena: 255,000 €
  • Kat: 1
  • Broj spavaćih soba: 2
  • Broj kupaonica: 1
  • Izgrađeno: 2025
  • Parking / garaža: Da