Opis

Prodaje se novi apartman u malom turističkom mjestu Sevid, Općina Marina. Nalazi se na prvom katu zgrade sa šest apartmana, sjeverno orijentiran, u sklopu novog apartmanskog kompleksa s ukupno tri zgrade kojima je zajednički sadržaj bazen od 100 m2, uz zonu za opuštanje sa ležaljkama, saunom i prostorijom za vježbanje i rekreaciju, dvije velike drvene pergole sa sjenilima kao dodatno osvježenje vanjskog prostora, te roštilj, kamin i krušna peć.
Udaljenost od mora je 100 metara.
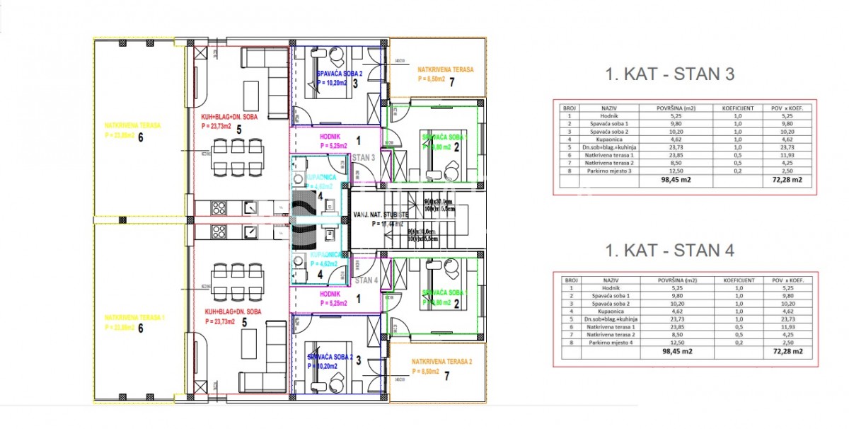
Netto površina apartmana S3 je 72,28 m2. Sastoji se od hodnika, kupaone, dvije spavaće sobe s izlazom na natkrivenu terasu, dnevne sobe s kuhinjom i blagovaonicom u sklopu jedne prostorije iz koje se izlazi na natkrivenu terasu, te pripadajućeg parkirnog mjesta. Ogradni zid cijelog kompleksa izgrađen je od obrađenog kamena.

Za više informacija molimo kontaktirati agenciju.

Detalji

  • Tip nekretnine: Apartmani
  • Vrsta usluge: Prodaja
  • Lokacija: Sevid
  • Površina: 72.00 m2
  • Cijena: 305,000 €
  • Kat: 1
  • Broj spavaćih soba: 2
  • Broj kupaonica: 1
  • Izgrađeno: 2023
  • Parking / garaža: Da