Opis

Prodaje se stan na prvom katu u manjoj novoj zgradi (PR+1) koja se nalazi u mirnom dijelu Vodica. Ima poseban ulaz.

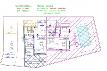
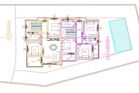
U prizemlju se nalazi stubište i ostava. Unutarnjim stubištem dolazi se na prvi kat gdje je hodnik, dvije spavaće sobe, kupaonica, dnevni boravak s kuhinjom i blagovaonicom iz koje se izlazi na balkon s kojega se malo vidi i more. Stanu pripada i dio dvorišta površine 10 m2, te jedno parkirno mjesto.

Udaljenost od centra mjesta je oko 900 m, a do većih trgovina i bitnih sadržaja duplo manje. Ulica je mirna, okruženje su nove zgrade koje imaju PR+kat, tako da je područje moderno i ne odaje dojmom preizgrađenosti. Stan bi trebao biti dovršen u proljeće 2026.g., a trenutno je u roh bau fazi.

Gradnja je kvalitetna, uz podno grijanje u dnevnom dijelu, klimama u sobama, termo fasadu itd. Može se pokazati primjer gradnje prethodnog objekta. Ritjetko viđen rad bez greške, završna obrada s detaljima koji pokazuju stručnost, što se u zadnje vrijeme rijetko viđa.

Za više informacija molimo kontaktirati agenciju.

Detalji

  • Tip nekretnine: Stanovi
  • Vrsta usluge: Prodaja
  • Lokacija: Vodice
  • Površina: 75.00 m2
  • Cijena: 229,000 €
  • Kat: 1
  • Broj spavaćih soba: 2
  • Broj kupaonica: 1
  • Izgrađeno: 2025
  • Parking / garaža: Da